Näyttelytilat ja pohjapiirrokset
tästä suoraan pohjapiirroksiin >>
KULMA (50 m2)
Näyttelytila on korkeahko (3,40 m) kulmahuone, johon lankeaa luonnonvalo kahdesta suuresta katutason ikkunasta. Tila on selkeä ja hillitty. Ikkunoista avautuu näkymä vilkkaasti liikennöidylle kadulle ja ohikulkijat voivat katsoa näyttelyä kadulta. Tila valaistaan öisin yövalolla.
Näyttelypaketin hinta on 900 € / 3 viikkoa.
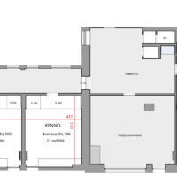
KENNO (21 m2)
Näyttelytilassa esitetään vuosittain useita Lahden valokuvataide ry:n kutsunäyttelyitä, joissa valokuva on pääosassa. Muina aikoina tila on vapaasti vuokrattavissa. Tila valaistaan öisin yövalolla, joten näyttely näkyy yleisölle erinomaisesti myös gallerian aukioloaikojen ulkopuolella.
Näyttelypaketin hinta on 490 € / 3 viikkoa.

KYMI (21 m2)
Näyttelytila sopii erityisesti näyttelyille, joissa tavoitellaan intiimiä ja “käsin kosketeltavaa” tunnelmaa teosten ja katsojien välille. Tilassa teosten ei tarvitse hyökätä tullakseen nähdyksi, vaan vähäeleinenkin teos säilyttää voimansa. Tila valaistaan öisin yövalolla, joten näyttely näkyy yleisölle erinomaisesti myös gallerian aukioloaikojen ulkopuolella.
Näyttelypaketin hinta on 490 € / 3 viikkoa.

Kirnu (20,3 m2)
Näyttelytila on täysin pimennettävissä ja soveltuu erinomaisesti installaatioille, ääni- ja videotaiteelle, performanssi- ja prosessitaiteelle sekä veistoksille joiden valaiseminen vaatii vastapainokseen pimeää. Tila on mahdollista valaista öisin yövalolla.
Näyttelypaketin hinta on 490 € / 3 viikkoa.








